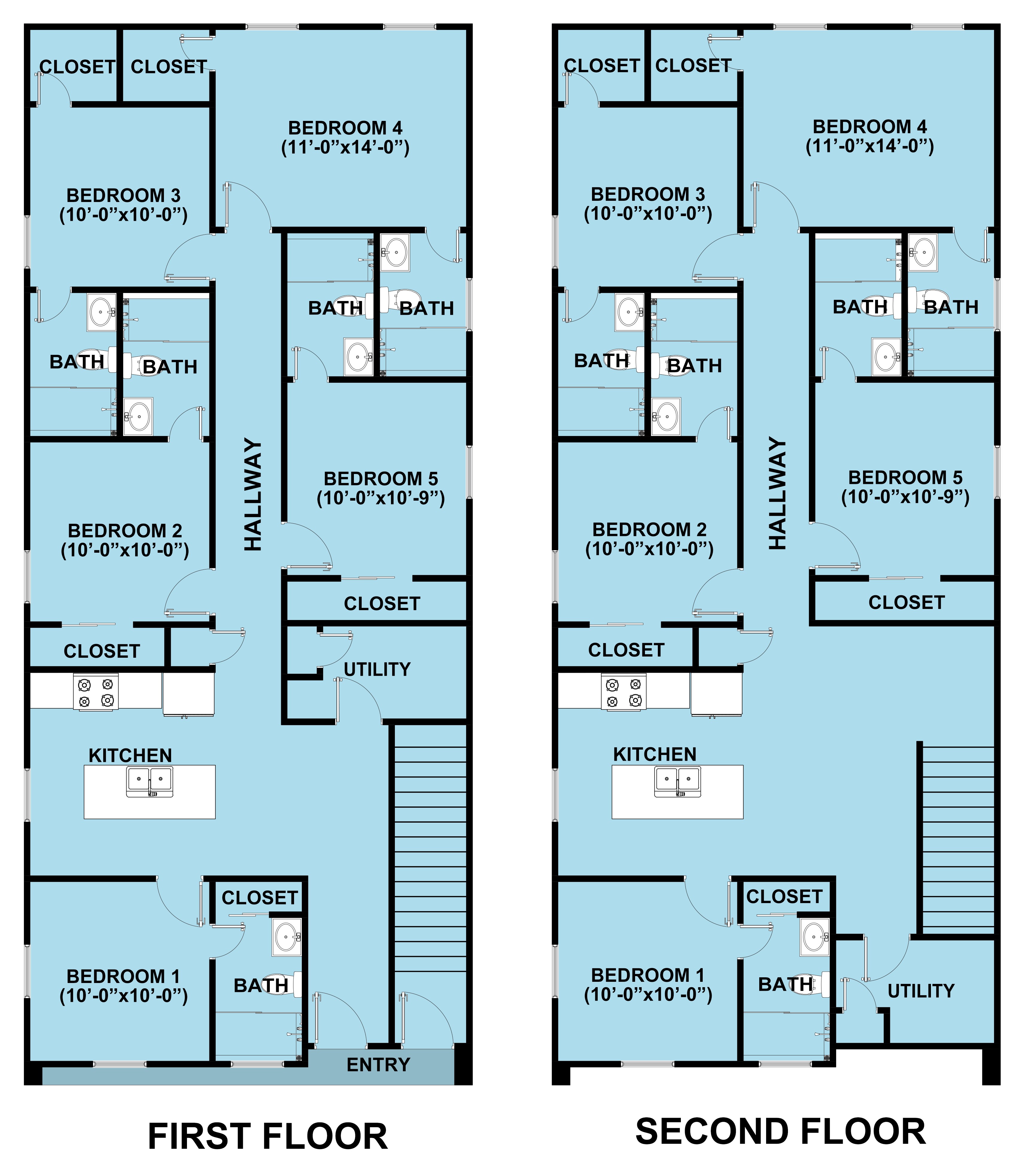
COLIVING 2-5-5-1,448
BK Bluebird
$341,728.00
Living Sq. Ft.
2896
sq ft
Bed/s
5
Bath/s
5
Level
2
Garage
No
Laundry
No
Outdoor
No
Lot Size
Length
25 ft
Depth
59 ft 2 in
Water
Yes
Sewer
Yes
Electric
Yes
Gas
Cable
Description
Next Steps
View Land Options
10+ options available
Financing Options
Available financial options
Construction Budget
Recently sold comparable
Develop This Build
Start development
Development
Permits
Construction
Get Pre-qualified
Get one step closer to your first development.
Location
Land Options
Start Your Rental Empire Today.
Join hundreds of investors using bttrbuild to build profitable, hands-off rental properties.















